Крупный промышленный комплекс
Ограничение на сайте (г. Краснодар).
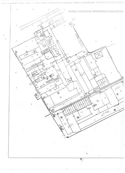
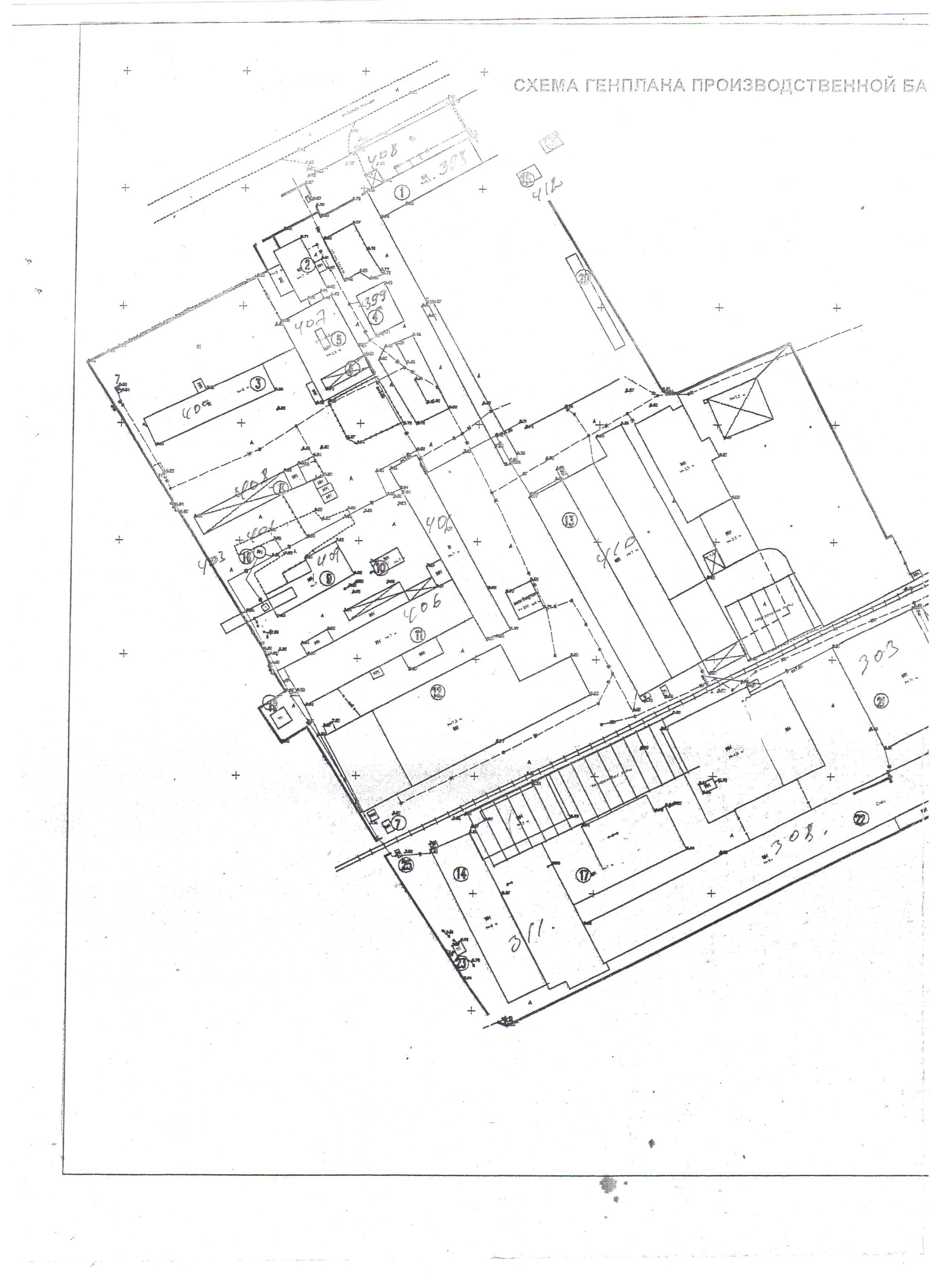
Крупный промышленный комплекс на участке 9 Га в промзоне г. Славянск-на-Кубани, ул. Дружбы Народов 13. Земля вместе с постройками находится в собственности.
Площадь помещений 34 204 м2. Площадь территории 90 097 м2.
Удобный подъезд с трассы для большегрузных автомобилей. Асфальтированная территория, парковка грузового транспорта.
Прием-отправка железнодорожным транспортом: подъездной ж/д путь длиной 247 м проходит непосредственно по территории комплекса. Имеется прирельсовый склад площадью 2 922 м2.
На территории расположены производственные цеха площадью: 3 588 м2, 5 687 м2, 2 645 м2, 3 822 м2, 1 867 м2, 7 137 м2.
Цеха металлообработки укомплектованы соответствующим оборудованием: станки, гильотины, сварочное оборудование и пр.
Прочие здания-сооружения, в том числе: покрасочно-сушительный комплекс 516 м2, мехмастерская 772 м2, компрессорная 598 м2.
Разгрузка-погрузка грузов осуществляется при помощи кран-балок в цехах.
В наличии металлические склады для готовой продукции, а также, площадки для негабаритных грузов.
Управленческий персонал располагается в административном здании площадью 1 492 м2.
Для персонала предусмотрены: столовая 675м2, медпункт 186 м2, здание входного контроля 247 м2.
Коммуникации:
Три собственных трансформаторных подстанции по 630 кВт каждая. Внутризаводская линия электропередач.
Газораспределительный пункт.
Артезианская скважина глубиной 135 м, плюс, водонапорная башня.
Водоснабжение и канализация по всей территории.
Кадастровый номер 23:48:03 03 006:1003.
Перечень основных объектов:
• Административное здание Лит. А - 1 492,7 кв.м;
• Подъездной железнодорожный путь протяженностью 247 м;
• Здание входного контроля (погрузочно-разгрузочный участок); Здание ОГМ и инструментальный участок - 3 558,6 кв.м;
• Здание литейного цеха и цеха сборки тракторных прицепов - 5 687,3 кв.м;
• Здание медпункта - 186,1 кв.м;
• Столовая - 675,9 кв.м;
• Здание компрессорной станции - 598,4 кв.м.;
• Мехмастерская - 772,6 кв.м;
• Входной контроль - 247,0 кв.м.;
• Здание цеха сборки автопоилок - 2 645,9 кв.м;
• Здание прессово-сварочного цеха - 3822,9 кв.м;
• Здание электроремонтного цеха - 1866,6 кв.м;
• Здание покрасочно-сушительного комплекса - 516,1 кв.м;
• Прирельсовый склад - 2922,4 кв.м;
• Незавершенный строительством цех тракторных прицепов - 7136,7 кв.м;
а также другие конструкции и оборудование.
Крупный промышленный комплекс на участке 9 Га в промзоне г. Славянск-на-Кубани, ул. Дружбы Народов 13. Земля вместе с постройками находится в собственности.
Площадь помещений 34 204 м2. Площадь территории 90 097 м2.
Удобный подъезд с трассы для большегрузных автомобилей. Асфальтированная территория, парковка грузового транспорта.
Прием-отправка железнодорожным транспортом: подъездной ж/д путь длиной 247 м проходит непосредственно по территории комплекса. Имеется прирельсовый склад площадью 2 922 м2.
На территории расположены производственные цеха площадью: 3 588 м2, 5 687 м2, 2 645 м2, 3 822 м2, 1 867 м2, 7 137 м2.
Цеха металлообработки укомплектованы соответствующим оборудованием: станки, гильотины, сварочное оборудование и пр.
Прочие здания-сооружения, в том числе: покрасочно-сушительный комплекс 516 м2, мехмастерская 772 м2, компрессорная 598 м2.
Разгрузка-погрузка грузов осуществляется при помощи кран-балок в цехах.
В наличии металлические склады для готовой продукции, а также, площадки для негабаритных грузов.
Управленческий персонал располагается в административном здании площадью 1 492 м2.
Для персонала предусмотрены: столовая 675м2, медпункт 186 м2, здание входного контроля 247 м2.
Коммуникации:
Три собственных трансформаторных подстанции по 630 кВт каждая. Внутризаводская линия электропередач.
Газораспределительный пункт.
Артезианская скважина глубиной 135 м, плюс, водонапорная башня.
Водоснабжение и канализация по всей территории.
Кадастровый номер 23:48:03 03 006:1003.
Перечень основных объектов:
• Административное здание Лит. А - 1 492,7 кв.м;
• Подъездной железнодорожный путь протяженностью 247 м;
• Здание входного контроля (погрузочно-разгрузочный участок); Здание ОГМ и инструментальный участок - 3 558,6 кв.м;
• Здание литейного цеха и цеха сборки тракторных прицепов - 5 687,3 кв.м;
• Здание медпункта - 186,1 кв.м;
• Столовая - 675,9 кв.м;
• Здание компрессорной станции - 598,4 кв.м.;
• Мехмастерская - 772,6 кв.м;
• Входной контроль - 247,0 кв.м.;
• Здание цеха сборки автопоилок - 2 645,9 кв.м;
• Здание прессово-сварочного цеха - 3822,9 кв.м;
• Здание электроремонтного цеха - 1866,6 кв.м;
• Здание покрасочно-сушительного комплекса - 516,1 кв.м;
• Прирельсовый склад - 2922,4 кв.м;
• Незавершенный строительством цех тракторных прицепов - 7136,7 кв.м;
а также другие конструкции и оборудование.
Цена: 65.000.000 руб.
Контакты: 89882800280








